Llevell

icono 4

Galería

PLANTAS DISPONIBLES

mapa 1

VER PLANTA

mapa 1

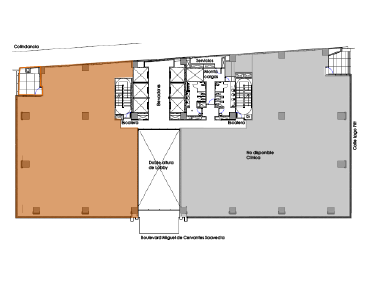
PLANTA BAJA

mapa 2

NIVEL 1

M2 útiles: 560.46 m2
M2 rentables: 660.74 m2
M2 terraza: 15.50 m2

mapa 5

NIVEL 5

M2 útiles: 1,447.64 m2
M2 rentables: 1,707.18 m2
M2 terraza: 10.21 m2

mapa 3

NIVEL 6

M2 útiles: 1,447.76 m2
M2 rentables: 1,707.80 m2
M2 terraza: 8.58 m2

mapa 5

NIVEL 7

M2 útiles: 1,447.64 m2
M2 rentables: 1,707.18 m2
M2 terraza: 10.21 m2

mapa 3

NIVEL 8

M2 útiles: 1,447.76 m2
M2 rentables: 1,707.80 m2
M2 terraza: 8.58 m2

mapa 5

NIVEL 9

M2 útiles: 1,447.64 m2
M2 rentables: 1,707.18 m2
M2 terraza: 10.21 m2

mapa 3

NIVEL 10

M2 útiles: 1,447.76 m2
M2 rentables: 1,707.80 m2
M2 terraza: 8.58 m2

mapa 5

NIVEL 11

M2 útiles: 1,447.64 m2
M2 rentables: 1,707.18 m2
M2 terraza: 10.21 m2

mapa 11

NIVEL 11

oficina 1104
Útil : 480.67 m2
Rentable: 538.35 m2
Terraza: 87.31 m2

mapa 12

NIVEL 12

oficina 1201
Útil : 167.15 m2
Rentable: 187.20 m2

oficina 1202
Útil : 300.00 m2
Rentable: 335.99 m2

mapa 13

NIVEL 13

oficina 1301
Útil : 585.25 m2
Rentable: 655.48 m2

Lobby General

mapa pb 1

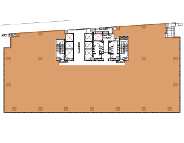
PB Local 1

Local 1
Útil PB: 296.24 m2
Útil Tapanco: 153.28 m2
Útil Total: 447.52 m2

Rentable: 501.22 m2
Terraza: 400 m2

mapa pb2

PB Local 2

Local 2
Útil PB: 133.44 m2
Útil Tapanco: 96.24 m2
Útil Total: 229.68 m2

Rentable: 257.24 m2

Terraza: 125.98 m2